Company Logo
Get New Listings Emailed Daily! SIGN UP LOGIN
Refine Search

4133 S Norfolk Avenue, Tulsa, OK 74105

$500,000
  • 4133 S Norfolk Avenue, Tulsa, OK 74105 Main Photo

31 Total Photos [Click to View All]

Active
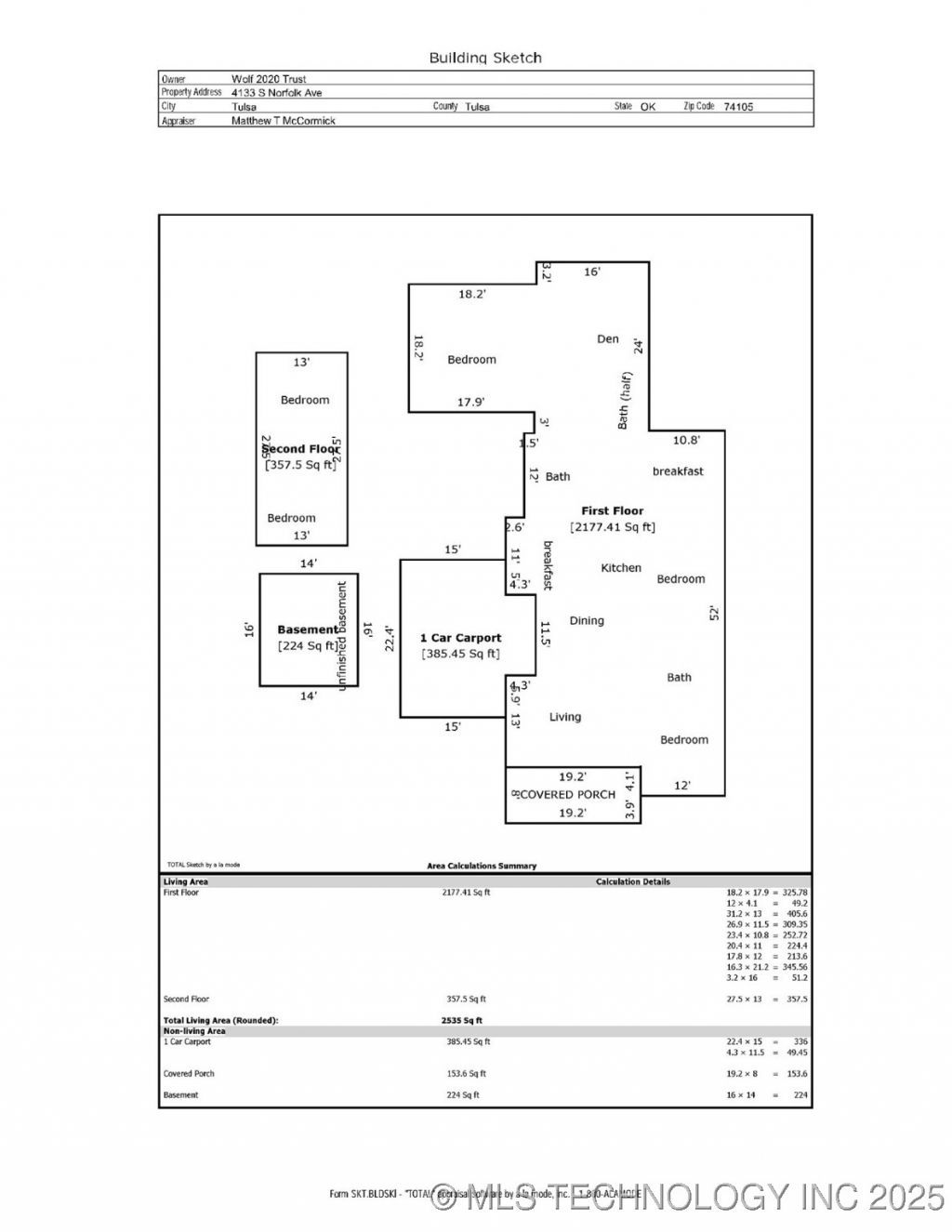
BEDS5 BATHS2 full 1 partial SQUARE FEET2,535 MLS#2542218
STATUSActive PROPERTY TYPEResidential - Single Family SUBDIVISIONAlta Dena Place SCHOOLTulsa - Sch Dist
APPLY FOR A MORTGAGE SUBMIT AN OFFER

Property Description

Charming Brookside Beauty with Timeless Character and Modern Comforts. Nestled in the heart of Brookside, this stunning home offers 5 bedrooms and 2.1 bathrooms, blending classic charm with thoughtful updates throughout. Step inside to discover a custom-designed kitchen featuring beautiful cabinetry with ample storage, marble countertops, newer appliances with interchangeable panels for a personalized touch, and under-cabinet lighting that highlights every detail. The formal dining area boasts gleaming hardwood floors and abundant natural light, creating a warm and inviting atmosphere. Just off the entry, the formal living room with a faux fireplace provides a cozy space for entertaining guests. The first-floor primary suite offers a private retreat with a custom walk-in closet and a luxurious en suite bath featuring dual vanities, custom cabinetry, marble tile, the original soaking tub, and a full walk-in shower with dual shower heads. A secondary bedroom on the main level is ideal for a home office, hobby space, or guest room. The guest bath is elegantly finished with floor-to-ceiling tile, while the spacious den offers the perfect spot to relax by the fireplace, complete with an adjacent bedroom and convenient half bath. Upstairs, you'll find two cozy secondary bedrooms, perfect for family, guests, or creative spaces. Outside, enjoy covered parking and the charm of this established Brookside neighborhood - all just minutes from shops, dining, and parks.

4133 S Norfolk Avenue | MLS# 2542218

This single family home located at 4133 S Norfolk Avenue, Tulsa, OK 74105 is currently listed for sale with an asking price of $500,000. This property was built in 1939 and has 5 bedrooms and 2 full and 1 partial baths with 2535 sq. ft. S Norfolk Avenue is located in the Alta Dena Place subdivision within the Tulsa - Sch Dist school district. Search Alta Dena Place real estate on www.solidrockrealtors.com today.

Property Features

Property Type: Residential - Single Family
Basement: Yes
Basement: Unfinished, Crawl Space, Partial
Cooling: Central Air,2 Units
Fireplaces: 2
Garage: 1 car attached
Heating: Central, Gas, Multiple Heating Units
Home Style: Spanish/Mediterranean
Lot Size: 0.21 Acres
Roof Type: Asphalt, Fiberglass
Stories: 2.0
Taxes: $4,715
Year Built: 1939

Amenities

High Ceilings
High Speed Internet
Stone Counters
Cable TV
Ceiling Fan(s)
Gas Range Connection
Gas Oven Connection
Programmable Thermostat
Concrete Driveway
Rain Gutters

Feature Descriptions

Appliances: Dryer, Dishwasher, Disposal, Gas Water Heater, Microwave, Oven, Range, Refrigerator, Washer
Community Features: Gutter(s)
Days on Site: 174
Exterior: Stucco, Wood Frame
Fencing: Full, Privacy
Fireplace: Decorative, Wood Burning
Flooring: Tile, Vinyl, Wood
HOA Y/N: No
Laundry: Washer Hookup, Electric Dryer Hookup
Lot: Mature Trees
Parcel#: 01650-92-25-00600
Parking: Attached, Garage, Porte-Cochere
Parking Notes: Attached, Garage, Porte-Cochere
Patio/Porch: Covered, Patio, Porch
Security: No Safety Shelter
Sewer: Public Sewer
Utilities: Electricity Available, Natural Gas Available, High Speed Internet Available, Water Available
Water: Public
Window: Vinyl, Insulated Windows

Local Schools

High School: Edison
Elementary School: Eliot
School District: Tulsa - Sch Dist

Listed By / Shown By

Listed By

Agency Name: Keller Williams Realty Central

Shown By

Agency Title: Solid Rock Realtors
Agency Phone: 918-341-7625

IDX logo

Estimate Your Payment

Estimated Payment

$ 1,651.53 per month $1,112.78 Principal & Interest $392.92 Property Tax $145.83 Homeowner's Insurance

Change Payment Information

%
years/fixed
yearly
yearly (est.)
(Payments are an estimate and may vary by lender)

Login to My Homefinder

Pixel